Bastion Luxury Medieval Accommodation

0

adauga la favorite

4.1
Bun
4 100
recenzii

Locatie
4.5
Calitate Wi-Fi
5
Personal
4
Curatenie
4.5
Raport calitate/pret
4
  Doar pentru adulti  

La doar câțiva pași de strada Cavalerilor, Bastion Luxury Medieval Accommodation oferă cazare cu autoservire și WiFi gratuit. În doar 5 minute de mers pe jos puteți ajunge în centrul vechiului oraș, unde se află impunătorul Palat al Marelui Maestru și faimosul Turn cu Ceas.

Apartamentele de la Castello del Cavaliere, administrat de o familie, sunt decorate cu respect pentru stilul local și oferă vederi spre împrejurimile pitorești. Facilitățile includ aer condiționat, un televizor cu ecran plasma și satelit, precum și o chicinetă cu inele de gătit, frigider și prăjitor de pâine.

Noul oraș este la 10 minute de mers pe jos și găzduiește o serie de magazine, restaurante și cafenele. Aeroportul Internațional Diagoras se află la 13 km distanță.

Puncte de interes in apropiere


Facilitati locatie ( gratis; contra cost)

General

Camere nefumatori
Camere izolate fonic
Incalzire
Nu se fumeaza in zonele publice
vezi mai multe

Receptie

Check-in/check-out Express
Seif
Bancomat in cadrul locatiei
Check-in/check-out Privat
vezi mai multe

Zona Living

Aer conditionat

Wellness

Vestiare pentru spa/centru fitness

Siguranta & Securitate

Extinctoare

'
'
'
'
'
'
'
'
'
'
'
'
'
'
'
'
'
'
'
'
'
'
'
'
'
'
'
'
'
'
'
'
'
'
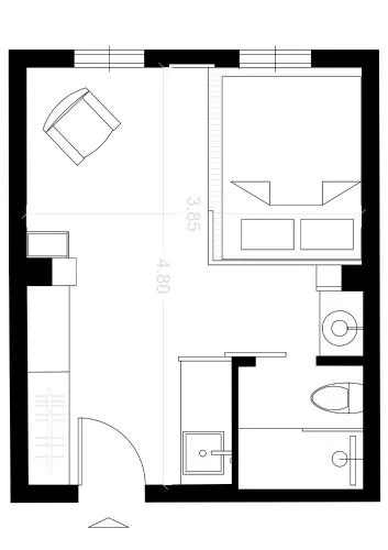
Apartament
Dimensiuni: 20 mp
Numar de camere: 4 camere
Boasting a private entrance, this air-conditioned apartment features 1 living room, 1 separate bedroom and 1 bathroom with a walk-in shower and a hairdryer. In the kitchen, guests will find a stovetop, a refrigerator and kitchenware. The apartment features a flat-screen TV with cable channels, soundproof walls, a tea and coffee maker, a seating area as well as city views. The unit has 1 bed.

WiFi gratuit     Aer condiţionat     Bucătărie     Vedere la punct de atracţie     Vedere la oraș     Baie în cameră     TV cu ecran plat     Izolare fonică    
Bucătărie: Mașină de cafea  Masă  Frigider  Plită de gătit  Ustensile de bucătărie  Chicinetă  Cană fierbător  Bucătărie  Produse de curățenie 
General : Seif  Pardoseală de lemn sau parchet  Fier de călcat  Facilităţi de călcat  Pardoseală de gresie/marmură  Intrare privată  Încălzire  Izolare fonică  Aer condiţionat 
Accesibilitate: Etaje superioare accesibile doar pe scări 
Media/Tehnologie: TV cu ecran plat  TV  Canale prin cablu  Canale prin satelit 
Dormitor: Paturi extra lungi (> 2 metri)  Lenjerie de pat  Garderobă sau dulap 
Baie: Prosoape  Articole de toaletă gratuite  Uscător de păr  Toaletă  Baie suplimentară  Duş  Hârtie igienică  Baie privată 
Divertisment și servicii pentru familii: Cărți, DVD-uri, muzică pentru copii 
Zonă de living: Zonă de relaxare 
Facilităţile camerei: Priză lângă pat 
Caracteristicile clădirii: Independentă 
Mâncăruri și băuturi: Aparat pentru prepararea de ceai/cafea 
Vedere: Vedere la oraș  Vedere la punct de atracţie 
Distanțare fizică: Aer condiționat individual pentru fiecare cameră de la proprietate 
Curățenie și dezinfectare: Dezinfectant pentru mâini 

'
'
'
'
'
'
'
'
'
'
'
'
'
'
'
'
'
'
'
'
'
'
'
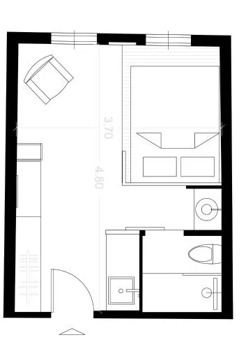
Apartament Deluxe
Dimensiuni: 18 mp
Numar de camere: 1 camera
Boasting a private entrance, this air-conditioned apartment includes 2 living rooms, 1 separate bedroom and 1 bathroom with a walk-in shower and a hairdryer. Featuring a terrace with an inner courtyard view, this apartment also offers soundproof walls and a flat-screen TV with cable channels. The unit has 1 bed.
Baie privată cu duș

WiFi gratuit     Aer condiţionat     Baie în cameră     Balcon     Vedere la curtea interioară     TV cu ecran plat     Izolare fonică     Terasă    
Bucătărie: Mașină de cafea  Masă  Frigider  Cană fierbător  Produse de curățenie 
General : Seif  Pardoseală de lemn sau parchet  Fier de călcat  Facilităţi de călcat  Pardoseală de gresie/marmură  Intrare privată  Încălzire  Izolare fonică  Aer condiţionat 
Accesibilitate: Etaje superioare accesibile doar pe scări 
Media/Tehnologie: TV cu ecran plat  TV  Canale prin cablu  Canale prin satelit 
Exterior: Mobilier de grădină  Terasă  Balcon 
Baie: Prosoape  Articole de toaletă gratuite  Uscător de păr  Toaletă  Duş  Hârtie igienică  Baie privată 
Divertisment și servicii pentru familii: Cărți, DVD-uri, muzică pentru copii 
Zonă de living: Zonă de relaxare 
Facilităţile camerei: Priză lângă pat 
Vedere: Vedere la curtea interioară 
Caracteristicile clădirii: Independentă 
Mâncăruri și băuturi: Aparat pentru prepararea de ceai/cafea 
Dormitor: Lenjerie de pat  Garderobă sau dulap 
Distanțare fizică: Aer condiționat individual pentru fiecare cameră de la proprietate 
Curățenie și dezinfectare: Dezinfectant pentru mâini 

'
'
'
'
'
'
'
'
'
'
'
'
'
'
'
'
'
'
'
'
'
'
'
'
'
'
'
'
'
Cameră de familie cu baie privată
Dimensiuni: 70 mp
Numar de camere: 1 camera
Meals can be prepared in the kitchenette, which comes with a stovetop, a refrigerator, kitchenware and a tea and coffee maker. The spacious family room provides air conditioning, a private entrance, a terrace with city views as well as a private bathroom featuring a walk-in shower. The unit offers 3 beds.
Baie privată cu duș

WiFi gratuit     Vedere la punct de atracţie     Vedere la oraș     Vedere la curtea interioară     Aer condiţionat     Baie privată     TV cu ecran plat     Izolare fonică     Terasă     Mașină de cafea    
Mâncăruri și băuturi: Mașină de cafea  Masă  Mobilier de grădină  Aparat pentru prepararea de ceai/cafea  Frigider  Plită de gătit  Ustensile de bucătărie  Chicinetă  Cană fierbător 
Facilităţile camerei: Seif  Pardoseală de lemn sau parchet  Paturi extra lungi (> 2 metri)  Fier de călcat  Facilităţi de călcat  Zonă de relaxare  Priză lângă pat  Pardoseală de gresie/marmură  Intrare privată  Încălzire  Garderobă sau dulap  Produse de curățenie  Izolare fonică  Aer condiţionat 
Accesibilitate: Etaje superioare accesibile doar pe scări 
Media/Tehnologie: TV cu ecran plat  TV  Canale prin cablu  Canale prin satelit 
Servicii/Suplimente: Prosoape  Lenjerie de pat 
Divertisment și servicii pentru familii: Cărți, DVD-uri, muzică pentru copii 
Baie: Articole de toaletă gratuite  Uscător de păr  Toaletă  Duş  Hârtie igienică  Baie privată 
Exterior/Vedere: Terasă  Vedere la curtea interioară  Vedere la oraș  Vedere la punct de atracţie 
Caracteristicile clădirii: Independentă 
Distanțare fizică: Aer condiționat individual pentru fiecare cameră de la proprietate 
Curățenie și dezinfectare: Dezinfectant pentru mâini